Featuring the Dawson Home Plan – Pippins Development – 101
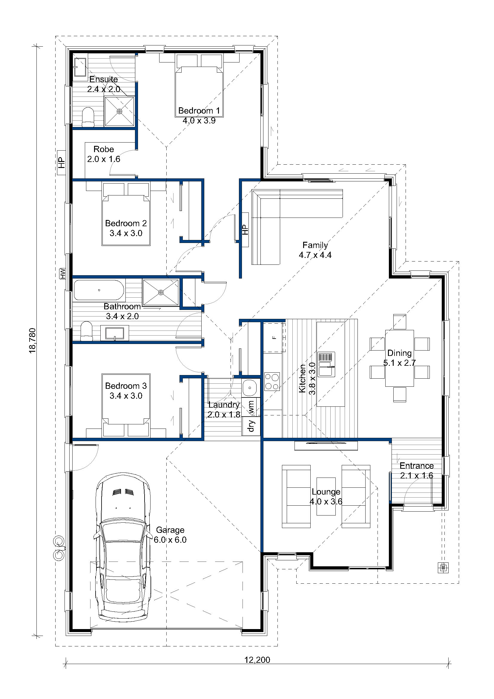
Set in Matamata, Pippins Development – Lot 101 features Bennett Homes’ Dawson plan, a 184m2 home that balances style, comfort, and functionality. Perfectly positioned on its generous 660m2 section, this home is designed for families who value space and modern living.
The Dawson plan offers three bedrooms and two bathrooms, including a master suite with an ensuite and a walk-in wardrobe. Dual living areas provide versatility for entertaining, relaxing, or creating a kids’ zone or home office.
The spacious open plan kitchen, dining, and living area forms the heart of the home, flowing effortlessly to outdoor spaces ideal for family gatherings. The designer kitchen features stone benchtops, quality fittings, and ample storage, making it a dream for home chefs.
With practical touches like a double garage, a fully landscaped section, and a Halo 10-year Guarantee, Lot 101 offers excellent value in a location designed for community and lifestyle.
Home and Land Package Details
Development: Pippins Development – Stage 3A
Lot Size: 660m2
House Size: 184m2
Section Price (incl. GST): $340,000
Build Price (incl. GST): $570,000
Total Package (incl. GST): $910,000
Perfect For
Families who want room to grow and entertain
Couples who enjoy modern, low-maintenance living
Investors seeking a high-quality home in a desirable Matamata location
Explore our other standard plans.




