Featuring the Ropere Home Plan – Pippins Development – Lot 104
Pippins Development – Lot 104, Matamata, features the Ropere plan from Bennett Homes. This 197m2 home is a generous, well-designed layout that offers comfort and functionality for families and professionals who value space, flexibility, and style.
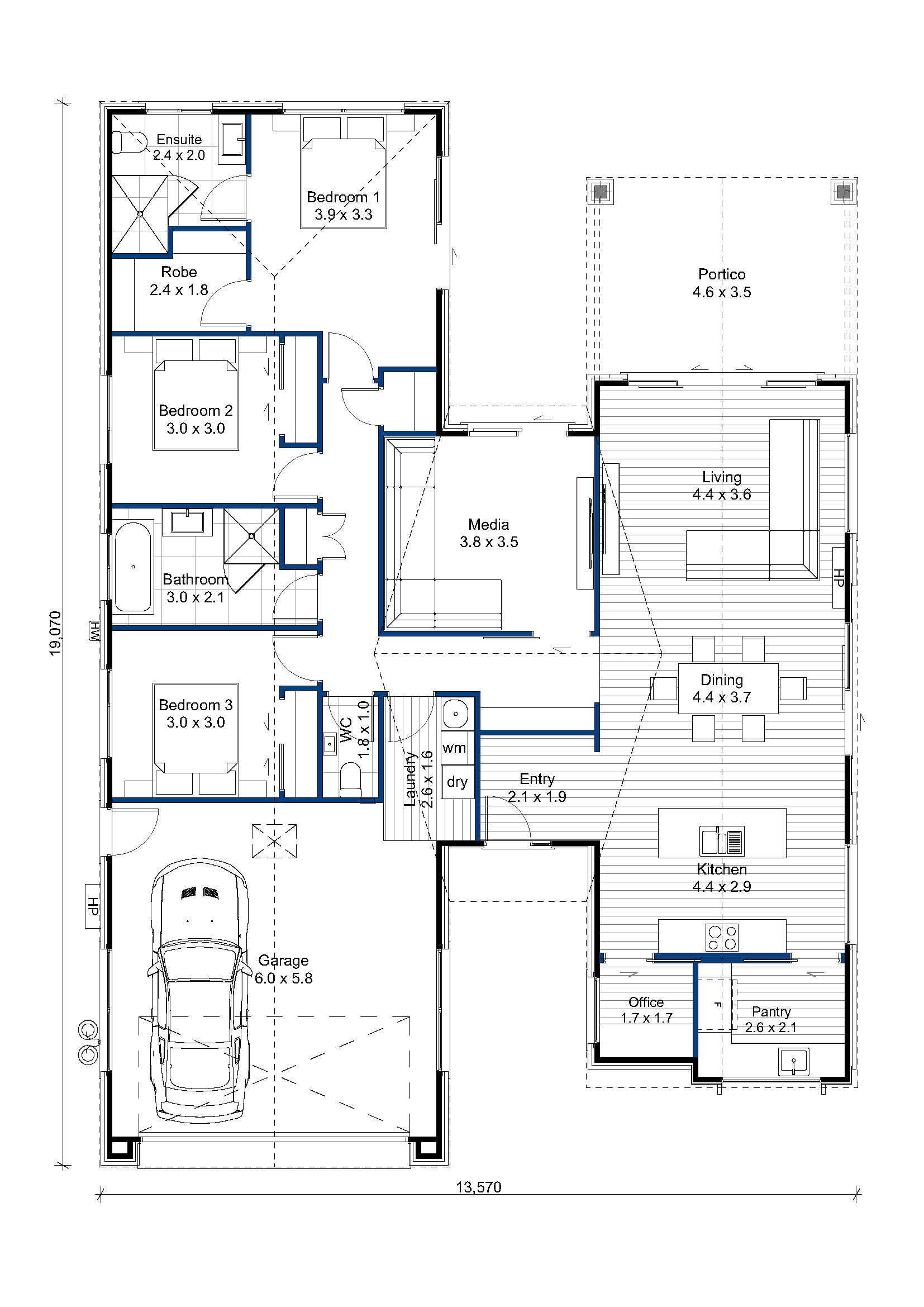
The Ropere plan includes three bedrooms, two and a half tiled bathrooms, and a separate office, making it ideal for working from home or managing a busy household. The master suite includes an ensuite and walk-in wardrobe, providing a private retreat within the home.
The open plan kitchen, dining, and living area is the social heart of the home, enhanced by a second living space for relaxation or entertainment. The designer kitchen includes a walk-in pantry and quality finishes, perfect for those who love to cook and host.
With a fully landscaped section, a double garage, and the assurance of a Halo 10-year Guarantee, this home delivers both practicality and modern comfort in a desirable Matamata location.
Home and Land Package Details
Development: Pippins Development – Stage 3A
Lot Size: 650m2
House Size: 197m2
Section Price (incl. GST): $340,000
Build Price (incl. GST): $740,000
Total Package (incl. GST): $1,080,000
Perfect For
Families who want extra room to live, work, and entertain
Professionals who value style and functionality
Retirees or downsizers wanting space with low maintenance in mind
Explore our other standard plans here.





