Featuring the Simpson Home Plan – Pippins Development – Lot 107
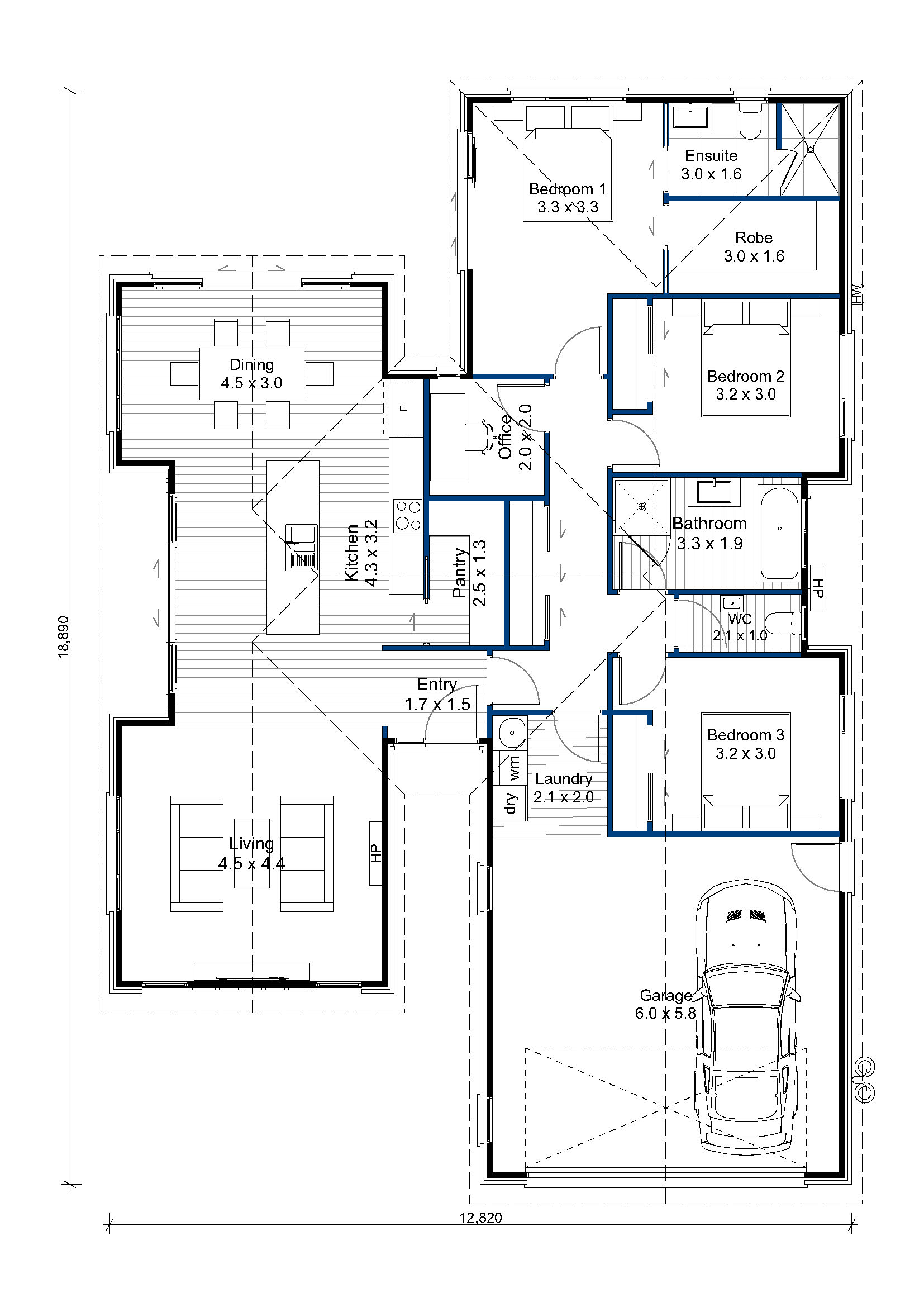
Lot 107 in the Pippins Development, Matamata, presents the Simpson plan from Bennett Homes. This 187m2 home combines practical design with modern style, perfectly suited for families, professionals, or anyone looking for an easy, contemporary lifestyle.
The Simpson plan features three bedrooms and two bathrooms, including a master suite with an ensuite and walk-in wardrobe. The open plan kitchen, dining, and living area creates a warm and social hub, while the separate office adds flexibility for work or study.
The designer kitchen includes a walk-in pantry, high-quality finishes, and a functional layout that makes entertaining effortless. Large windows and thoughtful design details create a light-filled home that feels both inviting and refined.
Set on a 650m2 section, this home includes a double garage, fully landscaped section, and comes with the peace of mind of a Halo 10-year Guarantee. Lot 107 offers excellent value and timeless style in the heart of Matamata’s popular Pippins Development.
Home and Land Package Details
Development: Pippins Development – Stage 3A
Lot Size: 650m2
House Size: 188m2
Section Price (incl. GST): $340,000
Build Price (incl. GST): $634,000
Total Package (incl. GST): $974,000
Perfect For
Families wanting a modern, comfortable home with space for everyone
Professionals working from home who value flexible living spaces
Downsizers seeking single-level living with low-maintenance design
Explore our other standard plans here.






